
所在區域:澳大利亞
房源面積:53-93㎡
物業類型:公寓(1房、2房)
房源位置:15 Russell Street, Essendon
房源價格:¥178萬起|35萬澳元起
裝修情況:精裝
房產產權:永久產權
咨詢熱線:4008-399-299
房源特色:精品公寓
交房時間:2019年中
項目位于墨爾本西北富人區,距離墨爾本市中心僅8公里,生活設施齊全,教育資源豐富。樓盤距離零售店,咖啡館到大型超市和購物中心都只是一步之遙,是成熟獨立人群或者向往毗鄰市中心生活家庭的完美居住地。澳幣35萬起,遠低于市中心價格,是高性價比之選。
Essendon位于墨爾本的西北區,在墨爾本被稱之為富人區,距離墨爾本市中心僅8公里,在墨爾本被稱之為富人區,是一個發展已經很成熟的區,生活設施十分齊全,教育資源豐富。從墨爾本國際機場只需15分鐘就能安坐家中,區內生活設施應有盡有,從零售店,咖啡館到大型超市和購物中心都只是一步之遙。這也是該區房價在墨爾本眾多西北區房地產中一路領先的重要因素! Essendon更是成熟獨立人群或者向往毗鄰市中心生活家庭的完美居住地。
LINC擁有3個絕佳的戶外區,由Jack Merlo精心打造,包括Teppanyaki屋頂花園、單獨燒烤區和位于1層的住戶庭院——在當地可謂獨一無二。
LINC處于Essendon Village中心地帶,緊鄰墨爾本CBD、繁華的Mt Alexander Road和Napier Street,位置優越、交通便利,能使住戶享受絕佳的現代生活。








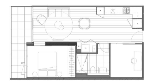
戶型:一室一衛部分帶一書房一車位
面積:53 - 69㎡
價格:AUD344,000.00 - 494,000.00

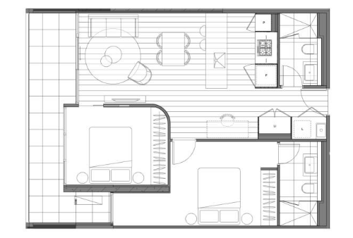
戶型:兩室兩衛帶一車位
面積:78 - 93㎡
價格:AUD585,000.00 - 625,000.00
(以上戶型及價格僅供參考)
電話:4008-399-299 郵箱:ymgj@univisa.com.cn 聯系我們 網站地圖
本版面設計已工商備案 未經書面授權禁止復制或建立鏡像
? Copyright 2025 永銘國際 www.ailucuiru.com 蜀ICP備12013405號-2